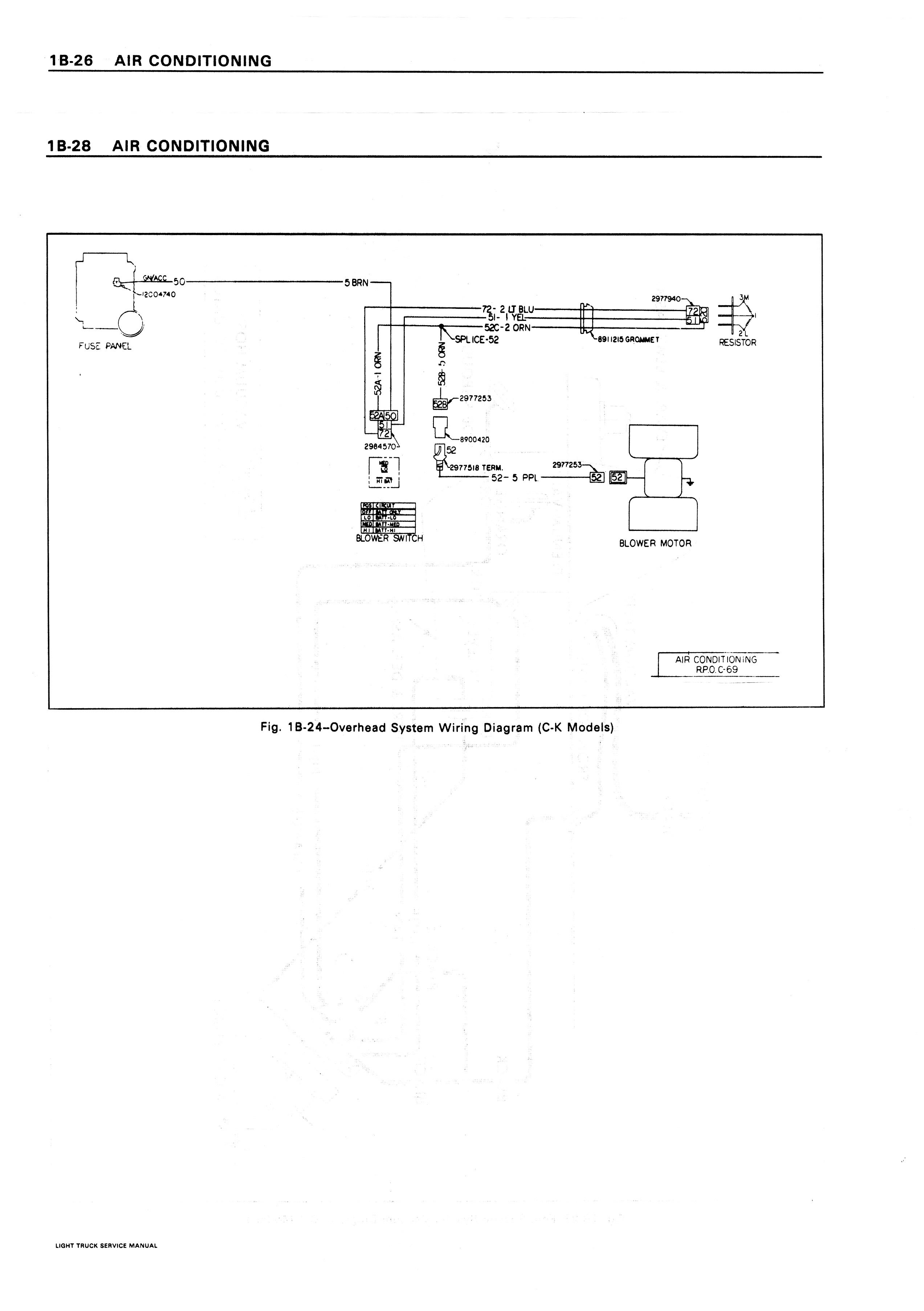
1979 GMC Series 10-35 Air Conditioning/79GMCService0068.jpg

Previous | Home | Next