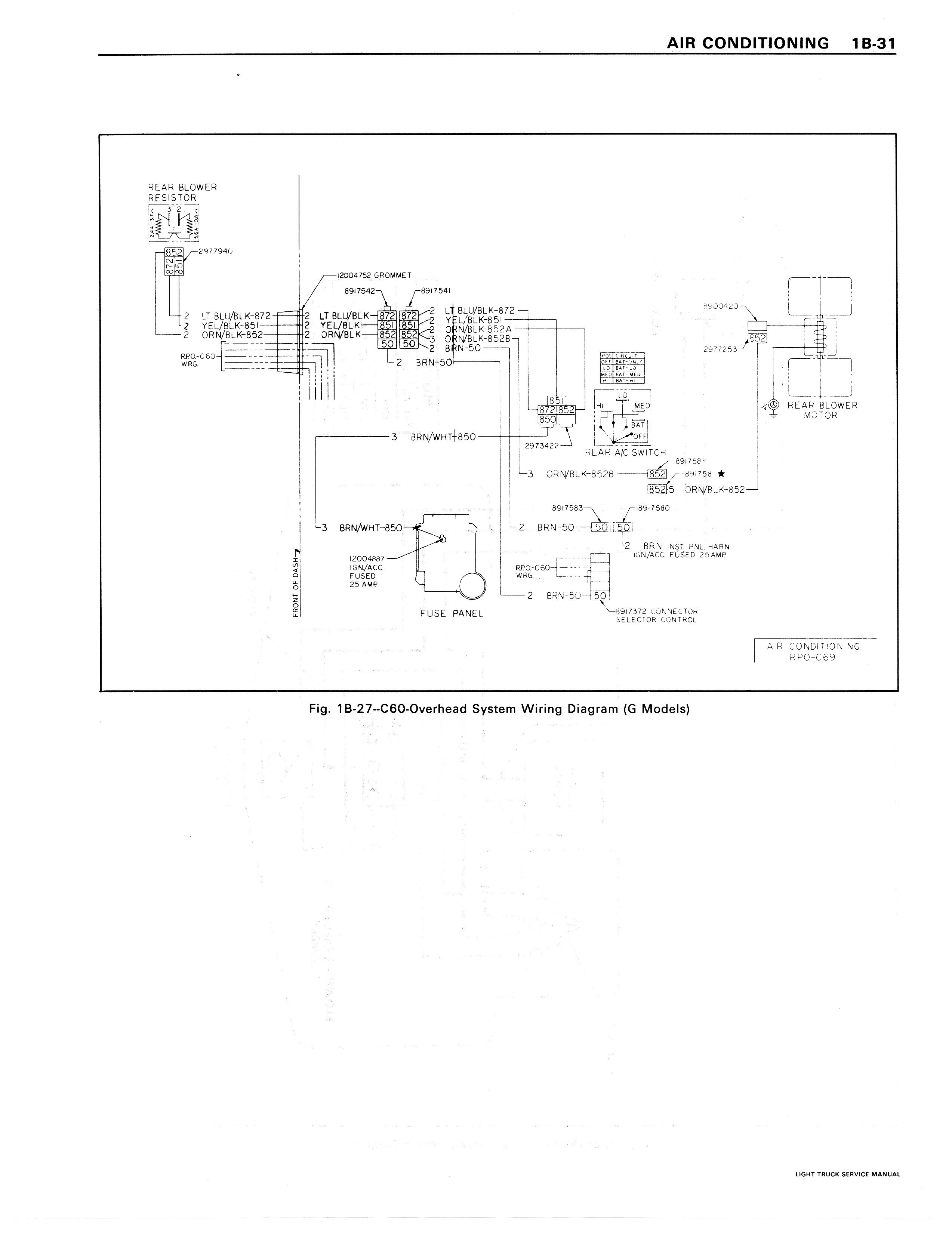
1979 GMC Series 10-35 Air Conditioning/79GMCService0071.jpg

Previous | Home | Next